APROBADOS LOS PROYECTOS DE ASFALTADO EN 14 CALLES Y OTRAS MEJORAS EN EL COLEGIO JUAN CARABALLO Y EL CAMPO DE FÚTBOL JOZABED SÁNCHEZ
- ???label.link.back???
- ???label.link.share???

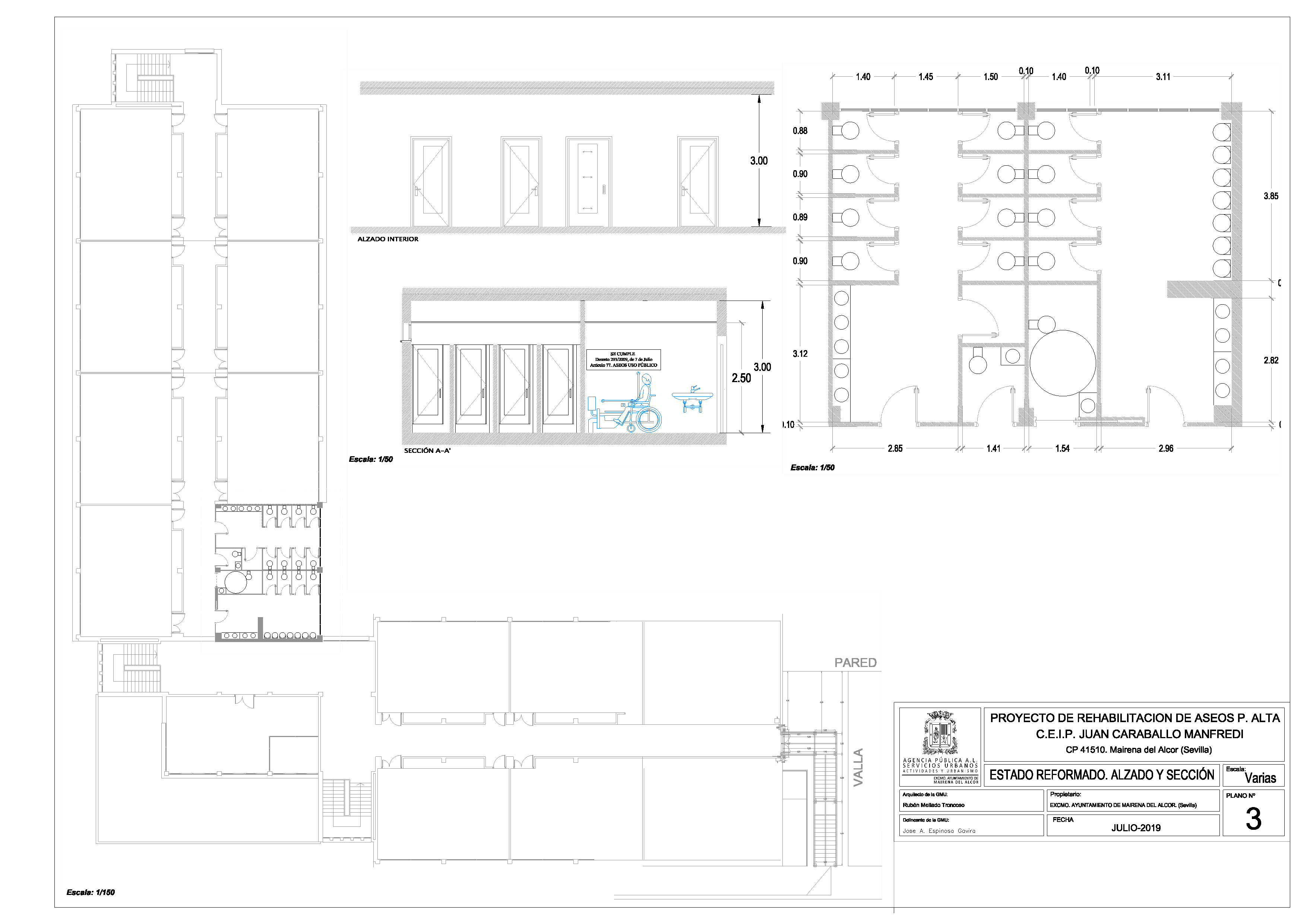
El Pleno del Ayuntamiento Mairena del Alcor ha aprobado por unanimidad este martes los cuatro proyectos incluidos en la séptima edición del Plan Supera de la Diputación de Sevilla. Se asfaltarán 11 calles de los barrios Huerta Retiro y El Cruce y otras 3 calles en el barrio El Chorrillo. La reparación de los aseos y el patio del colegio Juan Caraballo y la sustitución del césped en el Campo de Fútbol Jozabed Sánchez Ruiz son los otros proyectos, que suponen una inversión de 455.412,30 euros procedentes de este Plan provincial.
Esta inyección económica favorecerá la ejecución de la III Fase del Plan Municipal de Asfaltado en las calles Hijuelilla, José Echegaray, Aparejador Juan Ortega, Azorín, Pardo Bazán, Washington Irving, Jorge Luis Borges, Alfonso Grosso, José de Espronceda, Vázquez Montalbán y Virgen de Consolación. Las calles Divina Pastora, Ntra. Sra. del Rocío y Ntra. Sra. de las Nieves se repavimentarán tras la sustitución de las tuberías de la red de abastecimiento y saneamiento por parte de Emasesa.
En el colegio Juan Caraballo se acometerá la reforma del patio y de los núcleos de aseos ubicados en la primera planta del edificio. Por último, en el Campo de Fútbol Jozabed Sánchez Ruiz se procederá a la sustitución del césped artificial por otro con certificado homologado por la FIFA Quality con una longitud de hoja de 50 mm. Además, se sustituirá el sistema de riego, garantizando la totalidad de superficie del campo, así como también se harán intervenciones que mejoren la seguridad del mismo.
